$32,500
$45,000
27.8%For more information regarding the value of a property, please contact us for a free consultation.
10,750 Sqft Lot
SOLD DATE : 09/06/2023
Key Details
Sold Price $32,500
Property Type Vacant Land
Sub Type Single Family Residence
Listing Status Sold
Purchase Type For Sale
Subdivision Hunter Hills
MLS Listing ID 7091952
Sold Date 09/06/23
Style Other
Construction Status Resale
HOA Y/N No
Year Built 2022
Annual Tax Amount $924
Tax Year 2021
Lot Size 10,750 Sqft
Acres 0.2468
Property Sub-Type Single Family Residence
Source First Multiple Listing Service
Property Description
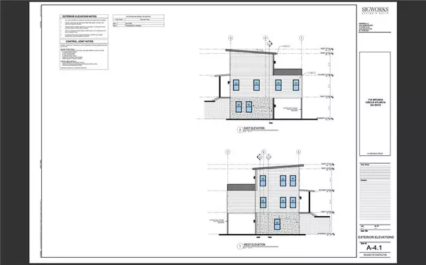
116 Arcadia Cir NW, Atlanta, GA 30314 is a vacant lot on a 10,750 square foot land close by Washington Park and the Atlanta Beltline Westside. The building permit is pre-approved with conditions. The site plan is for a single-family house with 3 bedroom/3.5 bath, and an FFE survey is available as well. Attached are photos of the site plans. For Sale as-is, the owner never lived on the property. If interested, please submit proof of funds. The listing agent is the co-owner of the property.
Location
State GA
County Fulton
Area Hunter Hills
Zoning --
Lake Name None
Rooms
Bedroom Description None
Other Rooms None
Interior
Equipment None
Exterior
Fence None
Community Features Near Beltline, Near Marta, Near Schools, Near Trails/Greenway, Park, Public Transportation, Other
Utilities Available None
Waterfront Description None
View Y/N Yes
View Trees/Woods, Water, Other
Present Use Residential, Vacant
Street Surface Asphalt
Porch None
Private Pool false
Building
Lot Description Creek On Lot
Architectural Style Other
Construction Status Resale
Schools
Elementary Schools M. A. Jones
Middle Schools Herman J. Russell West End Academy
High Schools Booker T. Washington
Others
Senior Community no
Tax ID 14 014200140426
Acceptable Financing Cash, Conventional, FHA, FHA 203(k), Other
Listing Terms Cash, Conventional, FHA, FHA 203(k), Other
Special Listing Condition Real Estate Owned
Read Less Info
Want to know what your home might be worth? Contact us for a FREE valuation!

Our team is ready to help you sell your home for the highest possible price ASAP

Bought with LoKation Real Estate, LLC






